RENOVATION DE CARACTERE TERTIAIRE : Réhabilitation/transformation d’un château – Odars 31

Lieu:
ODARS (31450)
Demande du client:
Réhabilitation et transformation de plusieurs bâtisses de caractère.
Créer des espaces dédiés à l’accueil de famille (gites de caractères) et de groupes (salle polyvalente).
Etude du projet en plusieurs étapes de réalisation.
Aide au montage administratif des dossiers d’autorisation (accessibilité, sécurité, etc).
Approche du projet:
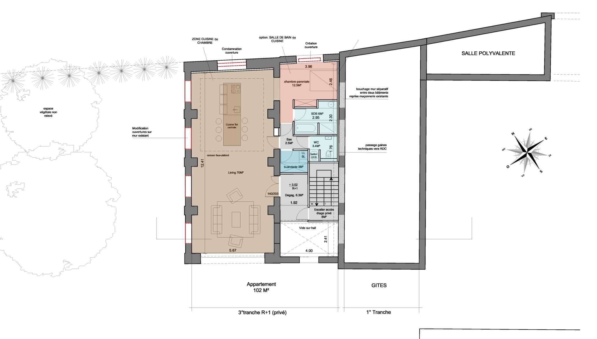
Diagnostic global : technique, d’usage, fonctionnel, thermique et administratif. Etude d’agencement d’intérieur.
Etude pour la réhabilitation de l’ensemble des bâtisses notamment :
1/ Réhabilitation bâtiment de l’orangerie avec transformation de destination pour créer des “Gites de caractères” adjacent au chai/grange.
2/ Réhabilitation de la grange pour créer un appartement privatif à l’étage.
3/ Réhabilitation du chai pour la transformer en salle polyvalente pour accueillir du public (ERP -Etablissement recevant du public).